Richiesta informazioni
close

Residence J8

Jesolo
Residence J8

"Comfort and Refinement"

Residence J8

indirizzo Jesolo
A partire da

385.000,00 €

Residence J8 | Lido di Jesolo

Immobiliare JVL è orgogliosa di presentare la sua nuova iniziativa, posizionata alle spalle della zona che va da Piazza Brescia a Piazza Mazzini: “Residence J8”. Caratterizzato da linee moderne, semplici e senza tempo, "J8" rispecchia tutto ciò che si ricerca nella propria residenza estiva: un perfetto connubio tra spazi interni ed esterni degli appartamenti, dimensioni delle unità immobiliari che permettono di fruirne dodici mesi all'anno, posto dedicato alle biciclette, generosi e introvabili doppi posti auto coperti con la predisposizione ricarica per l'auto elettrica.

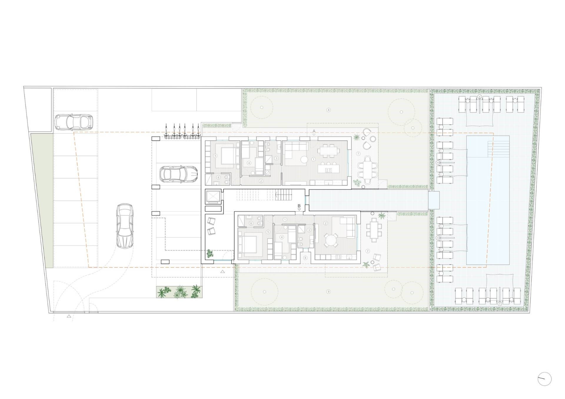
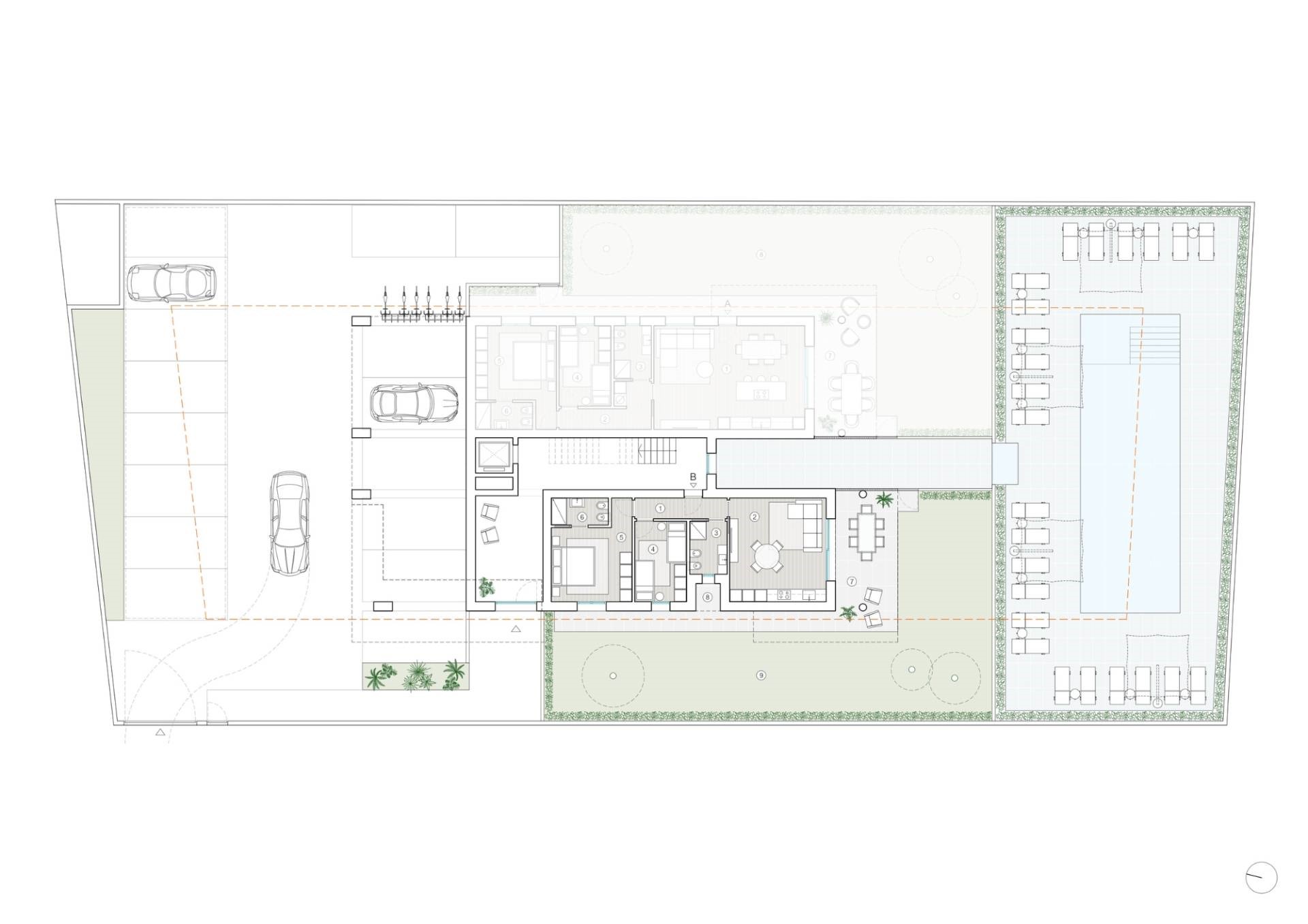
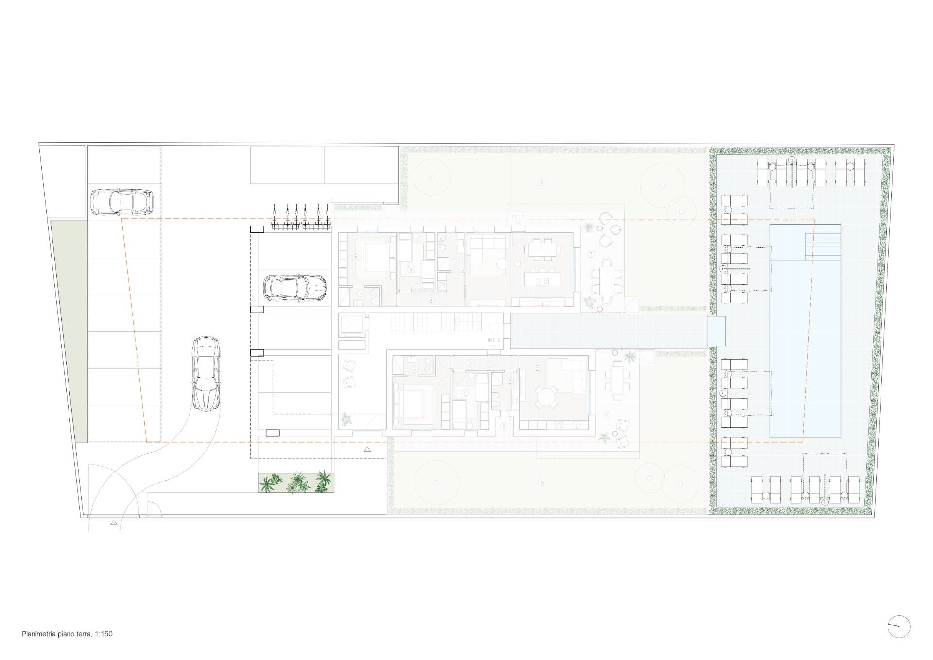
Al piano terra di “J8”, oltre allo splendido ingresso, abbiamo inserito una vera e propria area relax, grazie alla presenza di una piscina a sfioro circondata dal verde e rivestita con ceramiche di primissima qualità. Svariati gli spazi prendisole nel solarium, uno per ogni unità e per i propri ospiti. "J8" è un edificio sviluppato in orizzontale, per un totale di tre livelli fuori terra, composto da solamente otto unità immobiliari sapientemente distribuite.
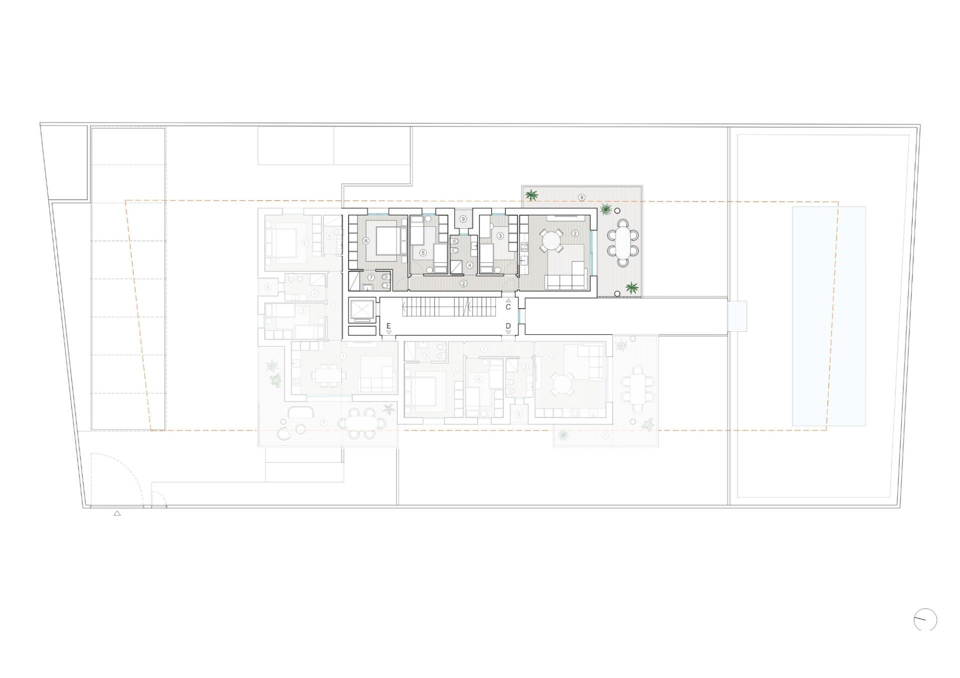
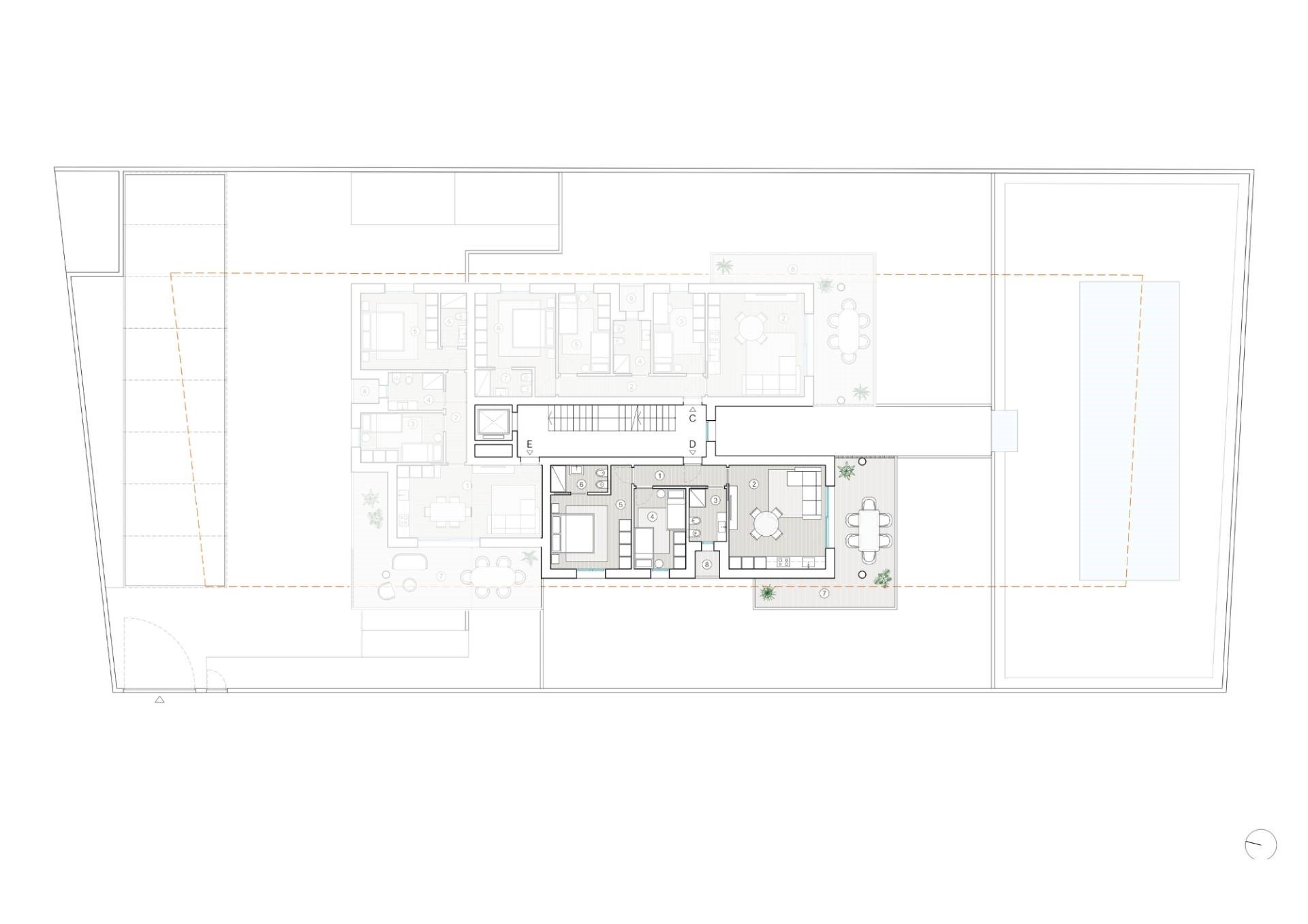
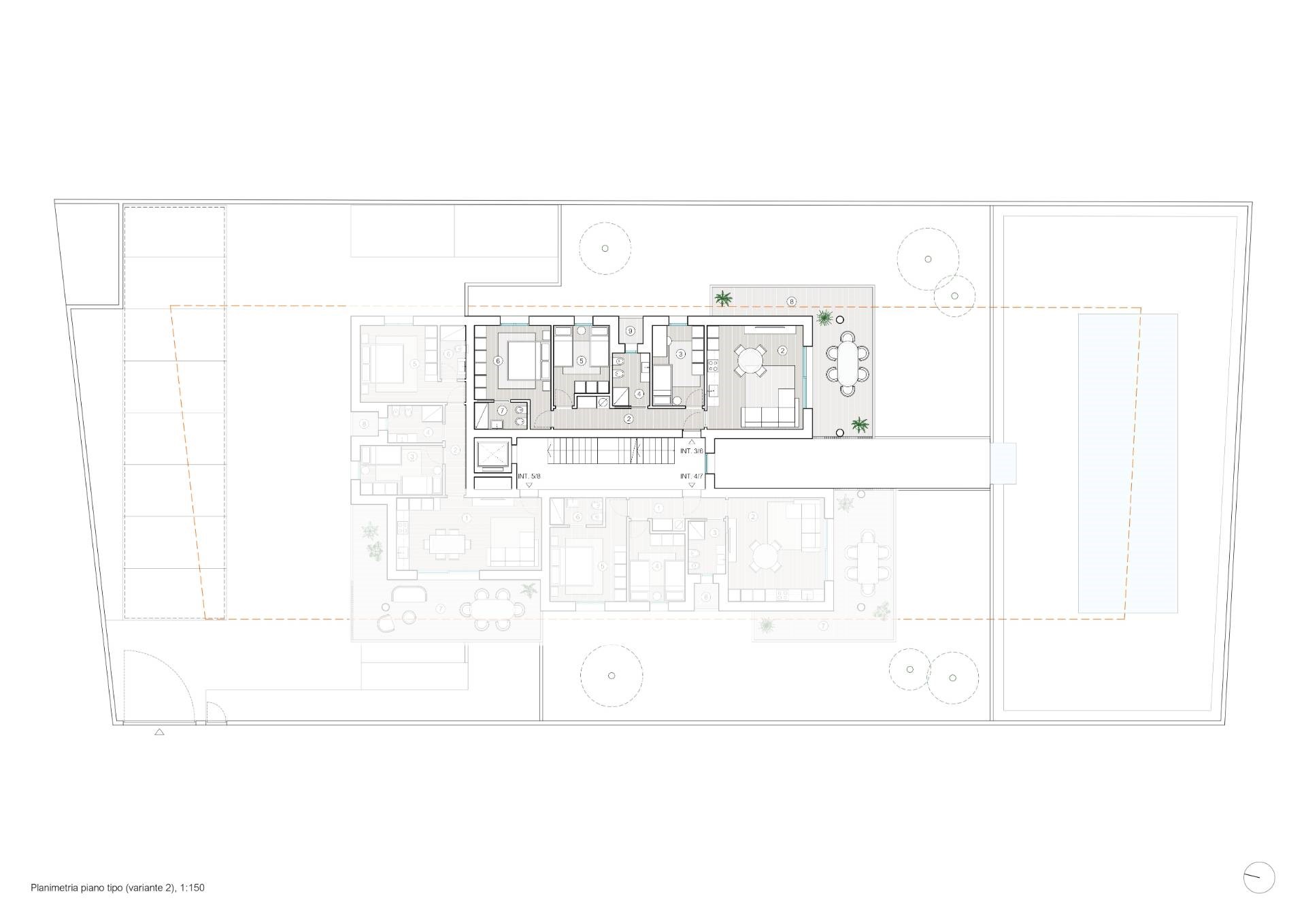
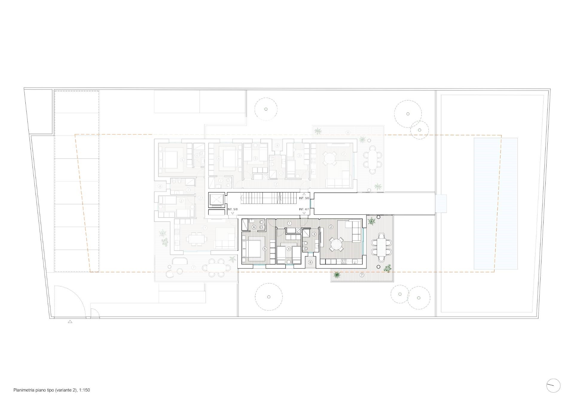
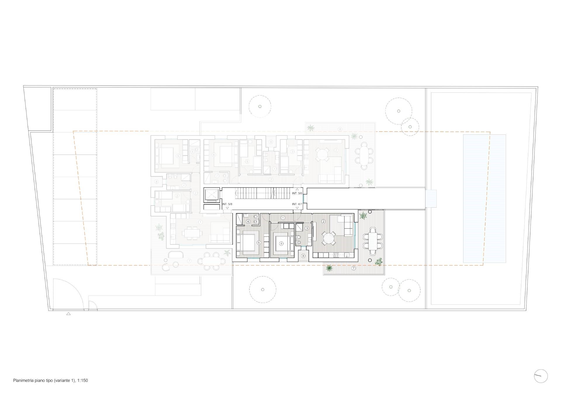
Quattro le tipologie di appartamenti presenti:

UNITA’ CON DUE CAMERE AL PIANO TERRA | LATO SUD-OVEST
L’unità si compone di un ingresso indipendente direttamente dal giardino di proprietà (oppure dall’androne condominiale mediante portoncino blindato), che comprende anche una bellissima terrazza pavimentata, perfetta per essere arredata con tavolo e sedie, dove potersi godere pranzi e cene all’aperto durante la bella stagione, circondati dal verde. Internamente trova spazio l’area living con cucina a vista e zona pranzo. Tramite disimpegno possiamo raggiungere la zona notte, che si compone di una camera doppia, un primo servizio completo di ogni comodità dedicato ad essa e alla zona living, e la spaziosissima camera matrimoniale con bagno en-suite.

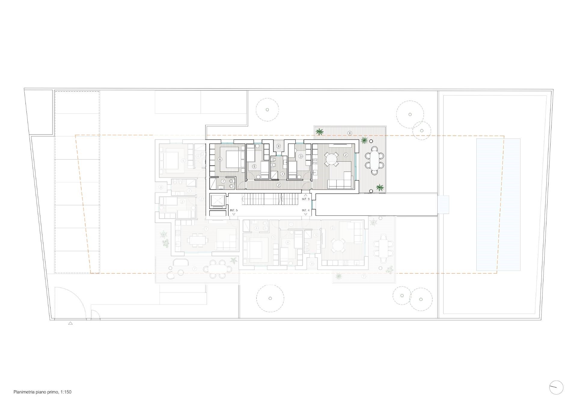
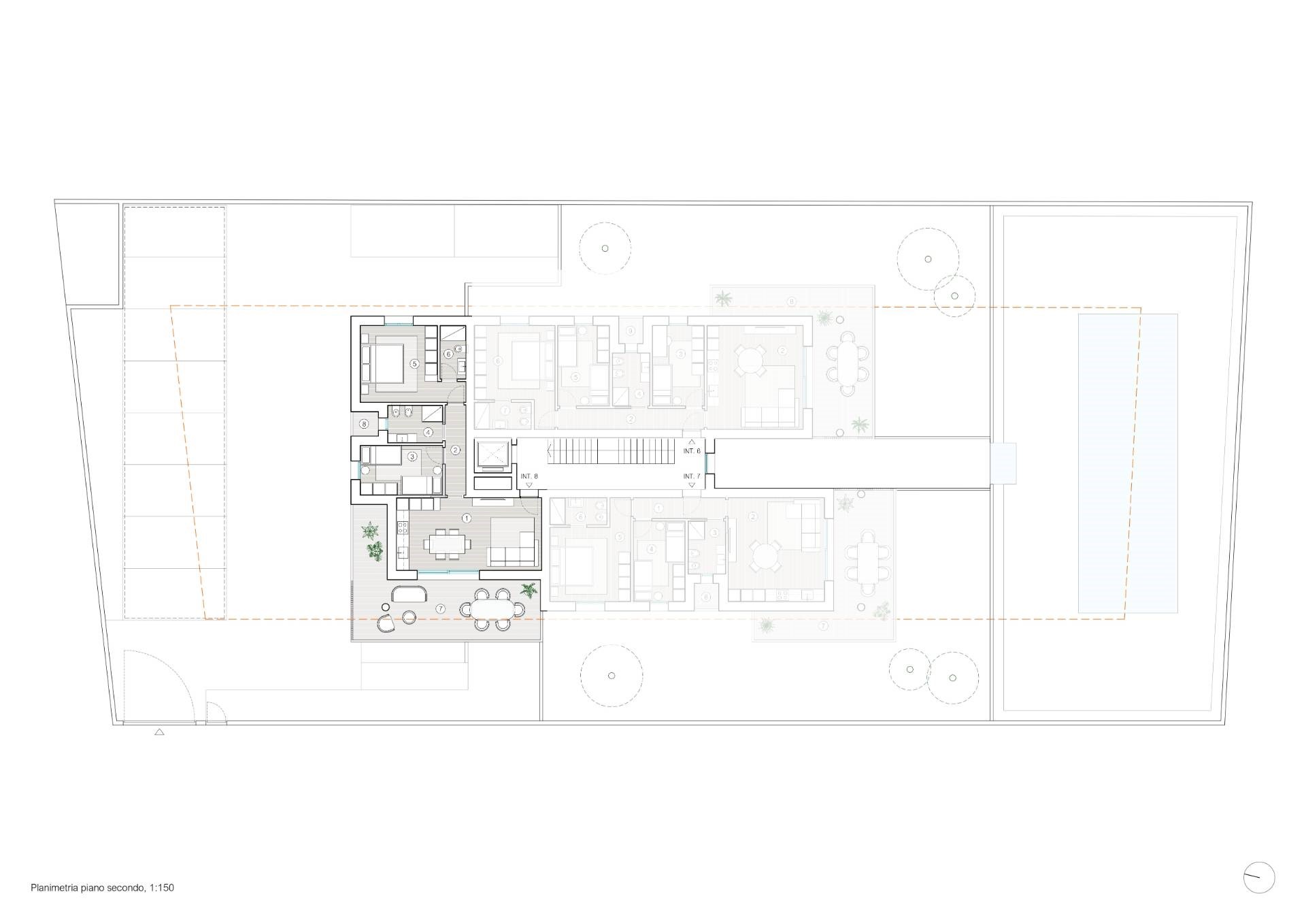
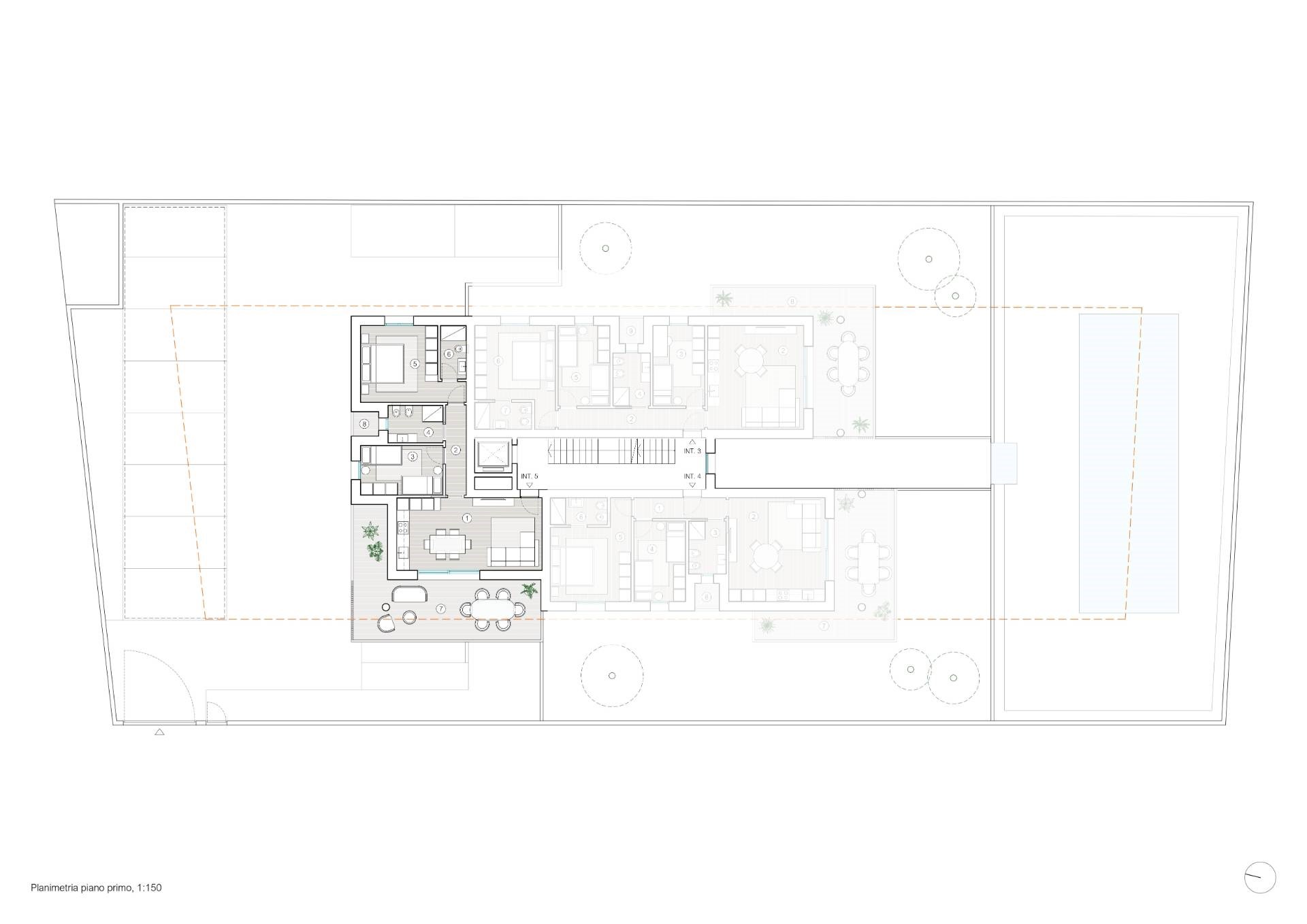
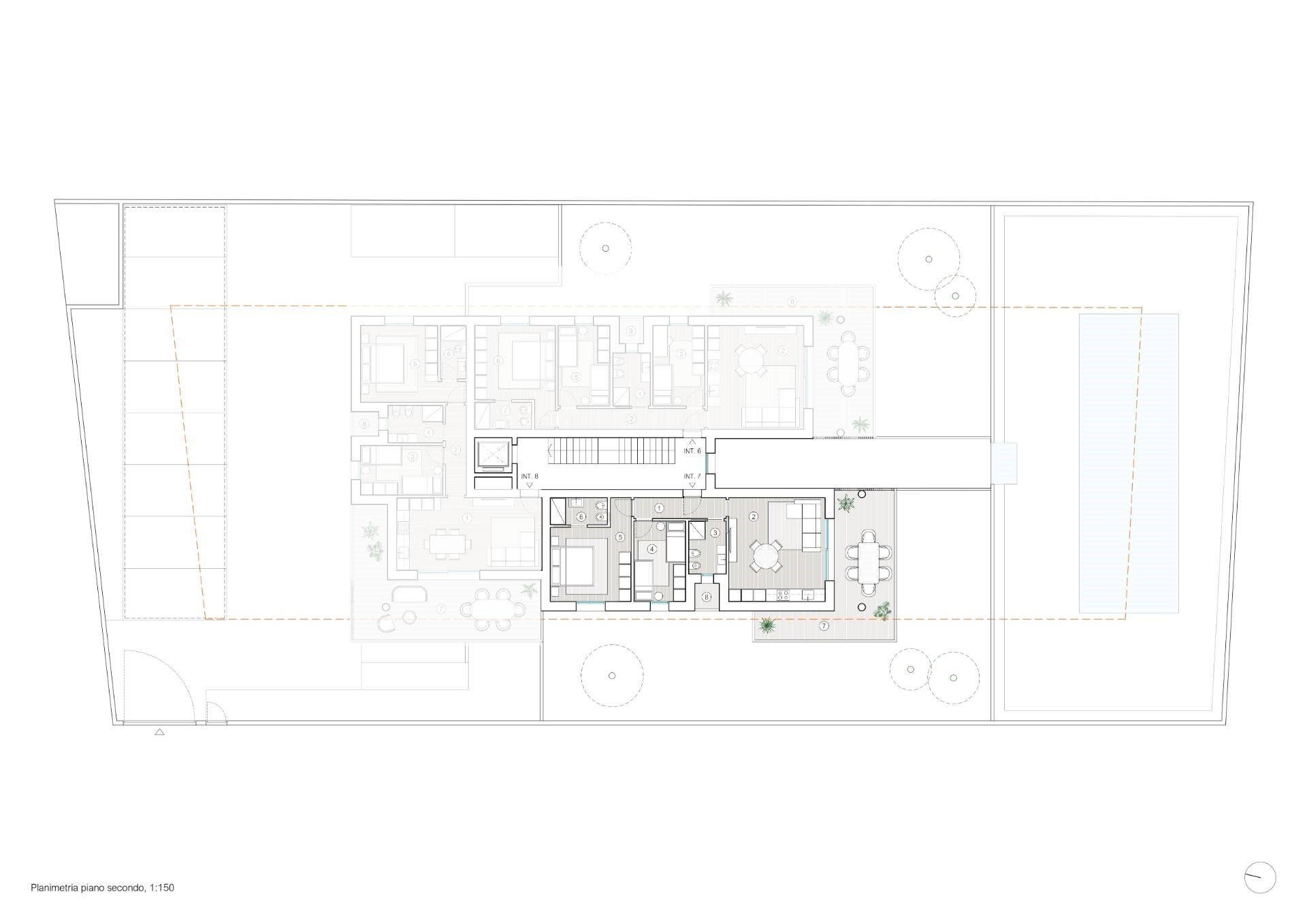
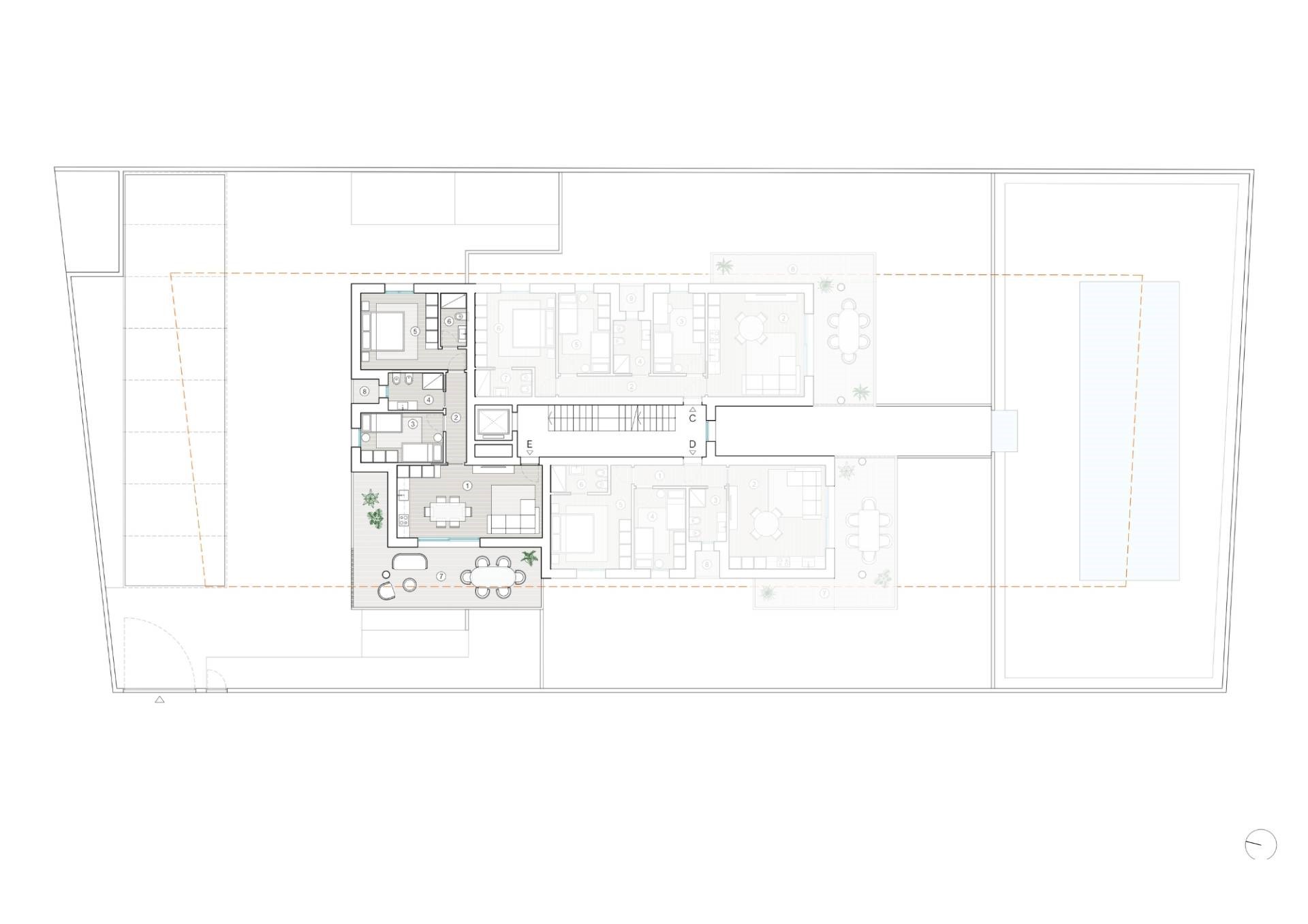
UNITA’ CON DUE CAMERE AL PIANO PRIMO E SECONDO | LATO SUD-OVEST
L’unità si compone di un ingresso direttamente dall’androne condominiale mediante portoncino blindato. Internamente trova spazio l’area living con cucina a vista e zona pranzo, affacciata sulla bellissima terrazza, perfetta per essere arredata con tavolo e sedie, dove potersi godere pranzi e cene all’aperto durante la bella stagione, circondati dal verde e con una splendida vista sull’azzurro della piscina. Tramite disimpegno possiamo raggiungere la zona notte, che si compone di una camera doppia, un primo servizio completo di ogni comodità dedicato ad essa e alla zona living, e la spaziosissima camera matrimoniale con bagno en-suite.

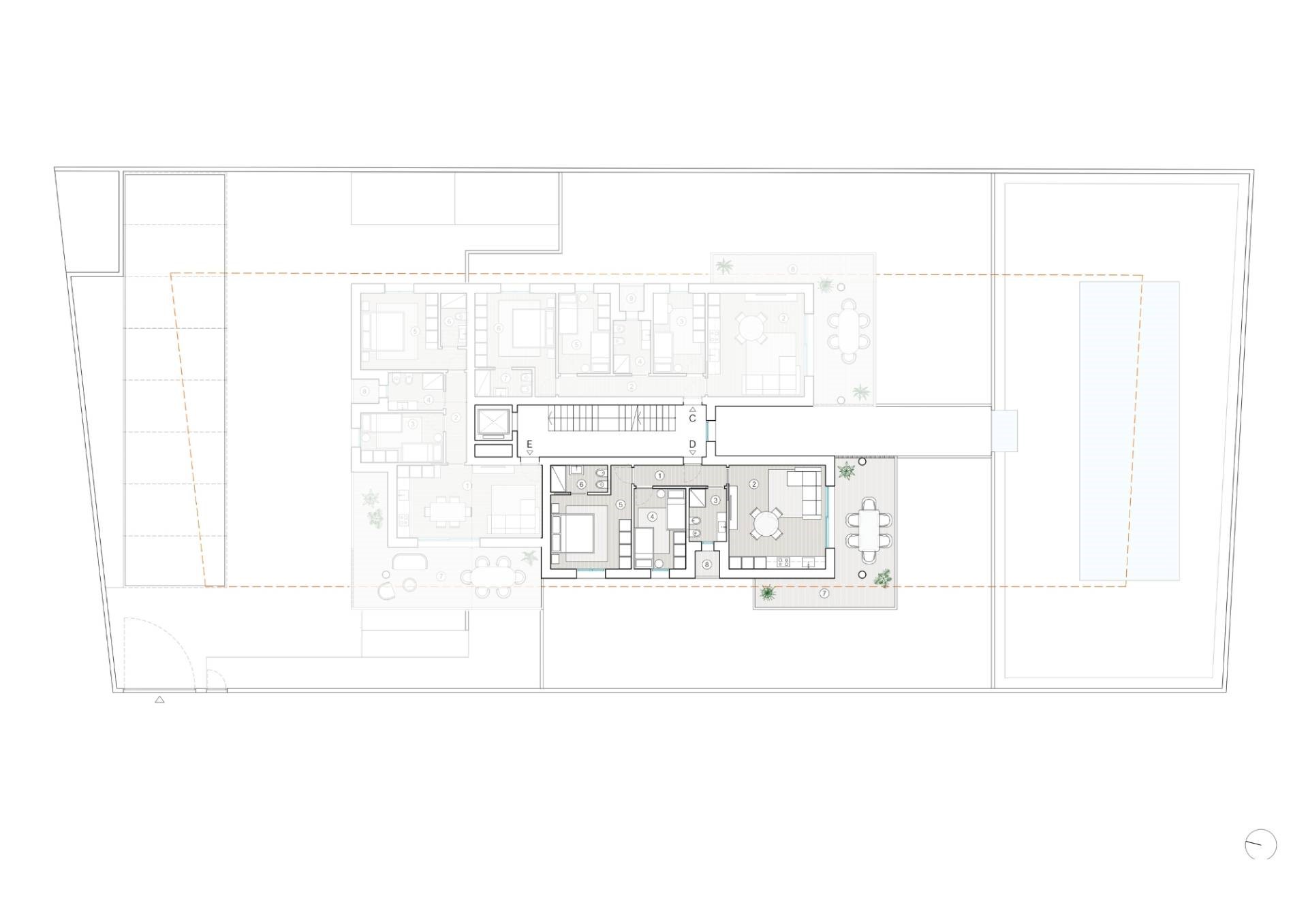
UNITA’ CON DUE CAMERE AL PIANO PRIMO E SECONDO | LATO NORD-OVEST
L’unità si compone di un ingresso direttamente dall’androne condominiale mediante portoncino blindato. Internamente trova spazio l’area living con una generosa cucina ad angolo e zona pranzo, affacciata sulla bellissima terrazza, perfetta per essere arredata con tavolo e sedie, dove potersi godere pranzi e cene all’aperto durante la bella stagione, circondati dal verde e con una splendida vista verso il tramonto. Tramite disimpegno possiamo raggiungere la zona notte, che si compone di una camera doppia, un primo servizio completo di ogni comodità dedicato ad essa e alla zona living, e la spaziosissima camera matrimoniale con bagno en-suite.

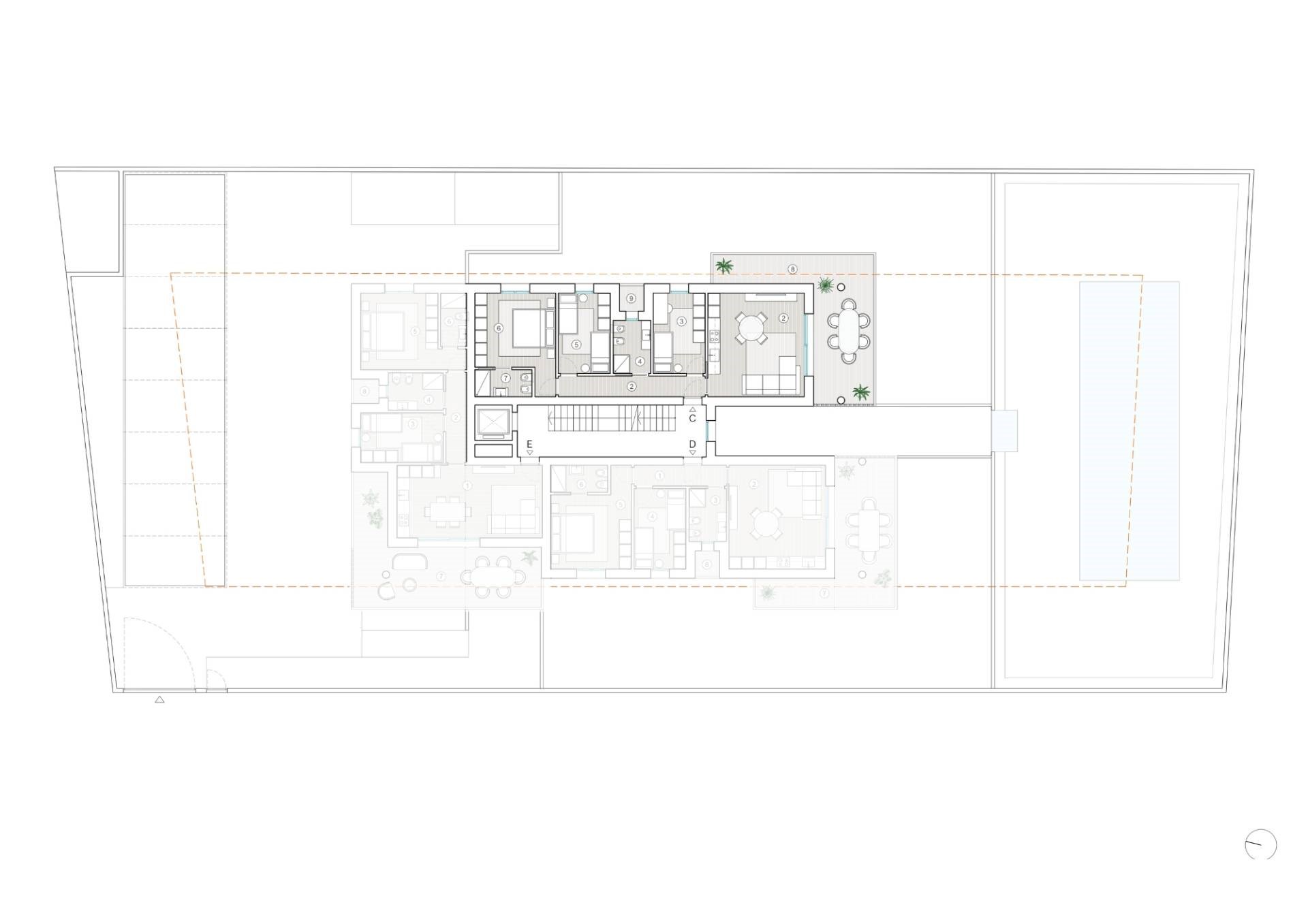
UNITA’ CON TRE CAMERE AL PIANO PRIMO E SECONDO | LATO SUD-EST
L’unità si compone di un ingresso direttamente dall’androne condominiale mediante portoncino blindato. Internamente trova spazio l’area living con cucina a vista e zona pranzo, affacciata sulla bellissima terrazza, perfetta per essere arredata con tavolo e sedie, dove potersi godere pranzi e cene all’aperto durante la bella stagione, circondati dal verde e con una splendida vista sull’azzurro della piscina. Tramite disimpegno possiamo raggiungere la zona notte, che si compone di ben due camere doppie, un primo servizio completo di ogni comodità dedicato ad essa e alla zona living, e la spaziosissima camera matrimoniale con bagno en-suite.

Finiture di elevatissimo livello, impianti di ultima generazione dedicati al raffrescamento e al riscaldamento, linee moderne, cura dei dettagli, studio approfondito degli ambienti interni sia condominiali che degli appartamenti, sono solo alcune delle peculiarità che fanno di "Residence J8" la scelta perfetta per chi è alla ricerca di una residenza estiva che permette di non rinunciare alla comodità e all'esperienza del vivere rilassati. Senza dimenticare, un occhio di riguardo all'ambiente grazie alle nuove tecnologie costruttive e alla presenza di un impianto fotovoltaico per ogni singola unità immobiliare.

Possibilità di portare in detrazione i benefici derivanti dal SismaBonus.

CONSEGNA PREVISTA ENTRO IL 2026.

Per Informazioni
Tel. 0421 381.380 | info@immobiliarejvl.it

Ns. Riferimento: "Residence J8 | Lido di Jesolo"

  1. Immobiliare JVL /
  2. Nuove costruzioni immobiliari
  3. /
  4. Residence J8

Richiesta informazioni

Scopri anche