Richiesta informazioni
close
Residence J8 | Tre Camere (Sud-Est)

AP 774

Jesolo
AP 774

Residence J8 | Tre Camere (Sud-Est)

Appartamento in Residence

AP 774

indirizzo Via Alfredo Albanese 8 Jesolo
Locali 5
Superficie 110,00 Mq.
Bagni 2
Classe energetica Non disponibile
Posto auto Doppio Coperto
Prezzo

€465.000,00

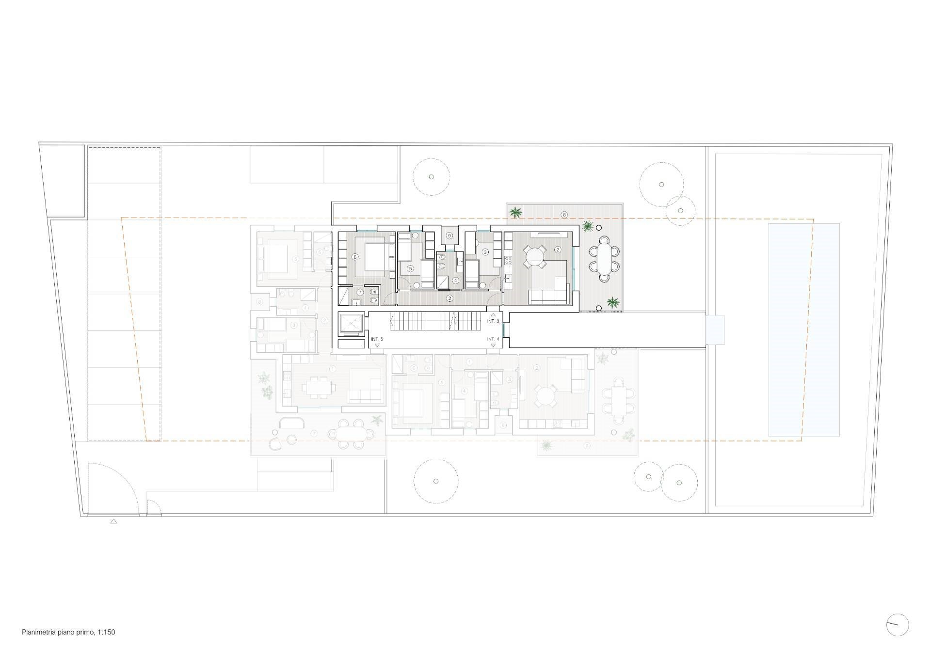
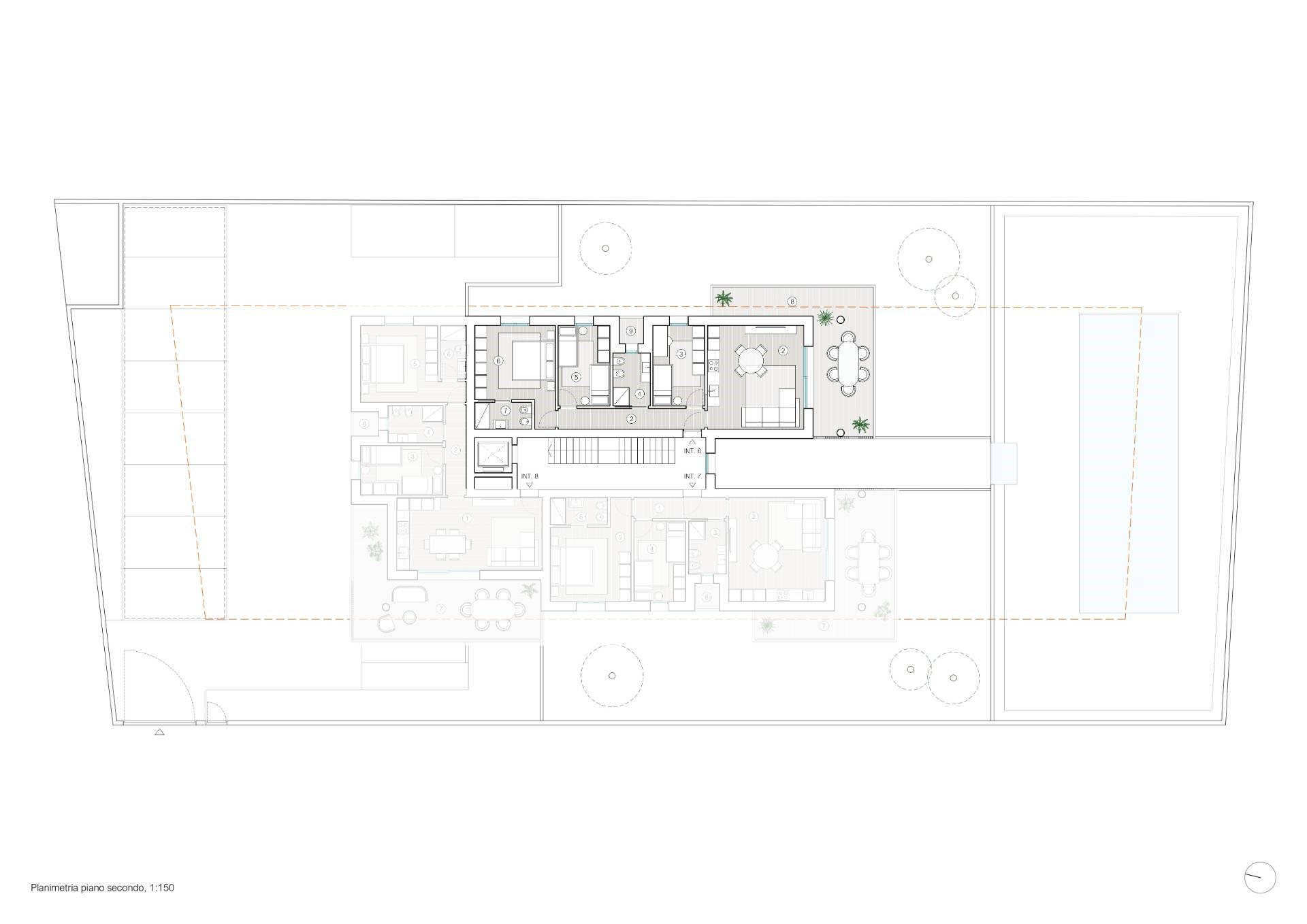
Residence J8 | Appartamento con TRE CAMERE al piano primo e secondo (Sud-Est)

Immobiliare JVL è orgogliosa di presentare la sua nuova iniziativa, di prossima costruzione, posizionata alle spalle della zona che va da Piazza Brescia a Piazza Mazzini (posizione: Via Albanese 8 - 30016, Jesolo), uno dei nuovi centri nevralgici della città di Jesolo: “Residence J8”.

Caratterizzato da linee moderne, semplici e senza tempo, "J8" rispecchia tutto ciò che si ricerca nella propria residenza estiva: un perfetto connubio tra spazi interni ed esterni degli appartamenti, dimensioni delle unità immobiliari che permettono di fruirne dodici mesi all'anno, posto dedicato alle biciclette, generosi e introvabili doppi posti auto coperti con la predisposizione ricarica per l'auto elettrica.

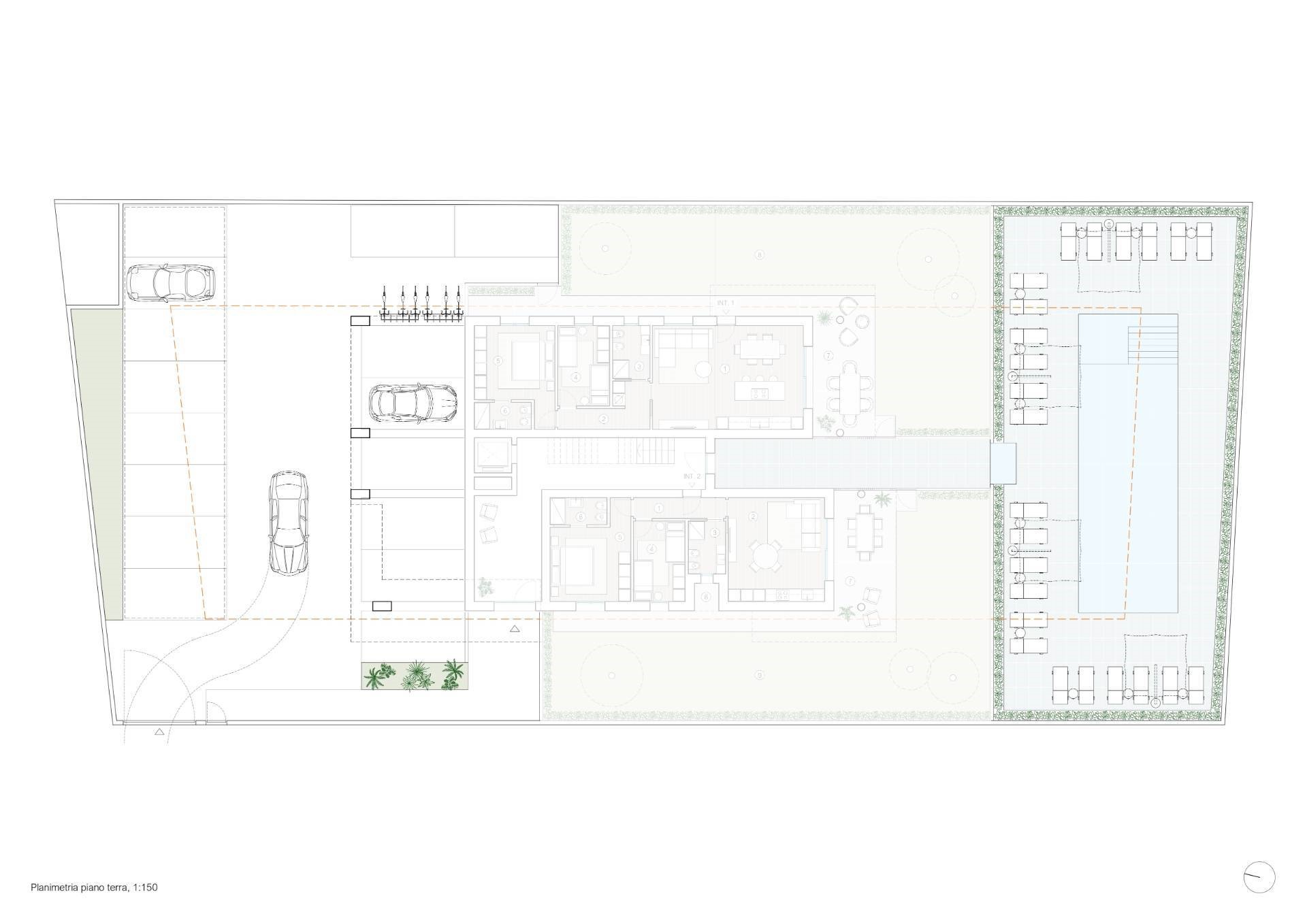
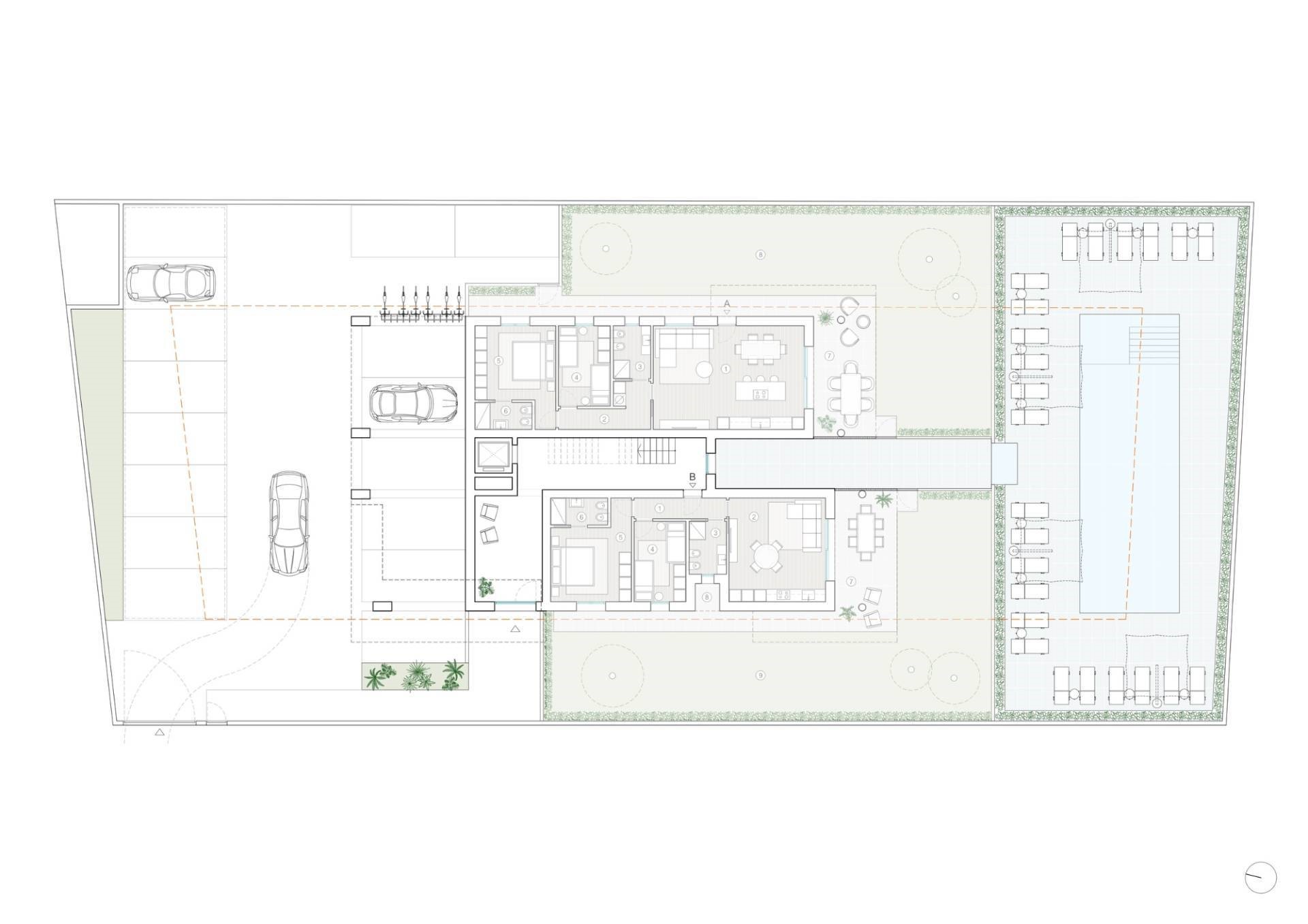
Al piano terra di “J8”, oltre allo splendido ingresso, abbiamo inserito una vera e propria area relax, grazie alla presenza di una piscina a sfioro circondata dal verde e rivestita con ceramiche di primissima qualità. Svariati gli spazi prendisole nel solarium, uno per ogni unità e per i propri ospiti.

"J8" è un edificio sviluppato in orizzontale, per un totale di TRE livelli fuori terra, composto da solamente otto unità immobiliari sapientemente distribuite.

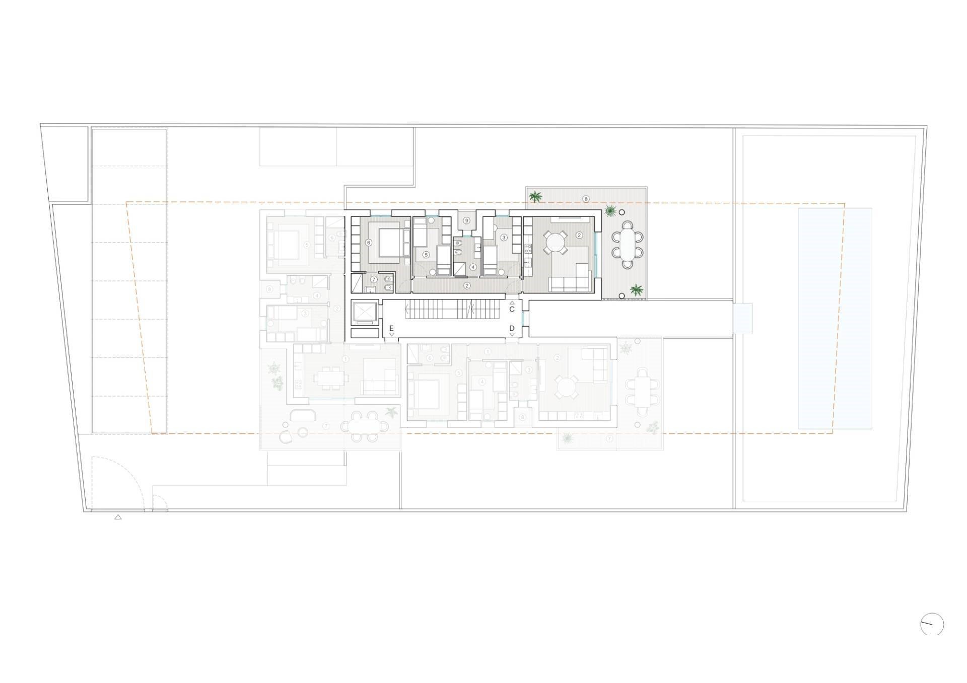
Piano PRIMO E SECONDO con TRE CAMERE (Sud-Est):

- Ingresso direttamente dal comodo vano scale con ascensore;
- Area living con cucina a vista e zona pranzo direttamente nella grande terrazza privata, perfetta per essere arredata con tavolo e sedie, dove potersi godere pranzi e cene all’aperto durante la bella stagione, circondati dal verde;
- - Disimpegno con alloggiamento per lavatrice/asciugatrice;

- Camera doppia;
- Camera doppia;
- Camera matrimoniale;
- Bagno principale con piccolo terrazzino di servizio;
- Bagno secondario (en-suite);

Finiture di elevatissimo livello, impianti di ultima generazione dedicati al raffrescamento e al riscaldamento, linee moderne, cura dei dettagli, studio approfondito degli ambienti interni sia condominiali che degli appartamenti, sono solo alcune delle peculiarità che fanno di "Residence J8" la scelta perfetta per chi è alla ricerca di una residenza estiva che permette di non rinunciare alla comodità e all'esperienza del vivere rilassati.
Senza dimenticare, un occhio di riguardo all'ambiente grazie alle nuove tecnologie costruttive e alla presenza di un impianto fotovoltaico per ogni singola unità immobiliare.

Possibilità di usufruire delle detrazioni fiscali derivanti dal SismaBonus:
€ 48.000,00 in 5 anni pari ad € 9.600,00/anno in regime di PRIMA CASA;
€ 34.560,00 in 5 anni pari ad € 6.912,00/anno in regime di SECONDA CASA;

CONSEGNA PREVISTA ENTRO IL 2026.

Per Informazioni
Tel. 0421 381.380 | info@immobiliarejvl.it

Ns. Riferimento: "Residence J8 | Appartamento con TRE CAMERE al piano primo e secondo (Sud-Est)"

  1. Immobiliare JVL /
  2. Case ed appartamenti in vendita
  3. /
  4. Appartamento in Residence AP 774

Richiesta informazioni

Scopri anche